Marina Herzliya garden apartment –

#13634
2,330,000$
Sold
#13634
2,330,000$

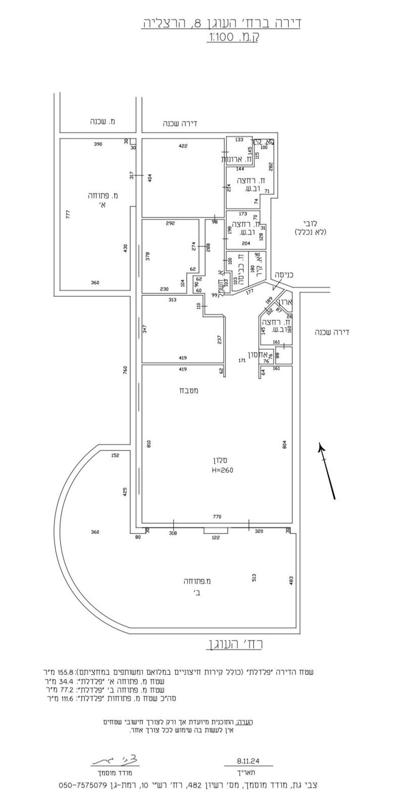
Vacation Garden apartment beautiful space 3 bedrooms 3 bathrooms +nice terrace

Great deal !!!

.

3

Bedrooms

156

Built Size

3

Bathrooms

70m

Terrace

More Properties

More Properties

For Sale

A charming and unique garden apartment that sits on the lagoon

#11212

2,265,000$

You can contact us for any question

Skip to content